•    
  •    
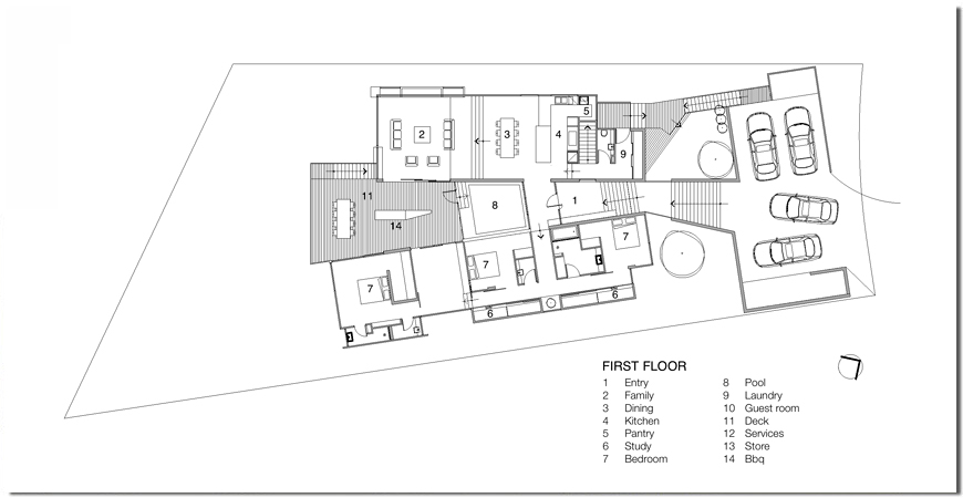
Melville Ave House Geelong
Two main elements drove this design, orientation and slope of the site. A 17m fall over the length of 54m with South facing views. Of high importance was to take advantage of the views at the same time ensuring solar access from the north. The views were achieved with large windows off the open plan living and master bedroom linked together by an adjoining entertaining deck. Pitched roof lines with hi-light windows ensured the northern solar access to each room of the house.
Design by BASE - © Anthony Hunt Design
209 Roslyn Rd, Belmont Vic 3216 P. 035298 1039 E. info@anthonyhuntdesign.com.au